כשמדובר בחדרי אמבטיה, מטבחים , חדרי ארונות , מסעדות ,מסחרי וכו' –
הפרטים הקטנים הם אלה שעושים את ההבדל –
והדרך הכי טובה לוודא שהם יוצגו כמו שצריך,
היא ליצור פריסות פנים מסודרות ומדויקות.
הנה חמשת השלבים שיהפכו אתכם למומחים בתחום:
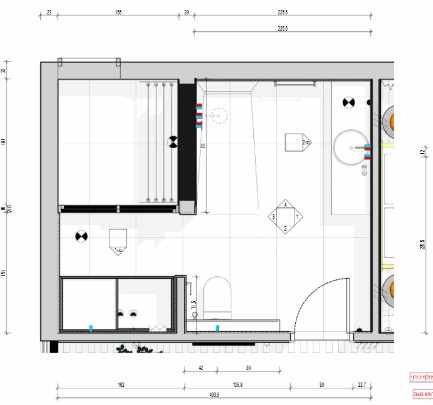
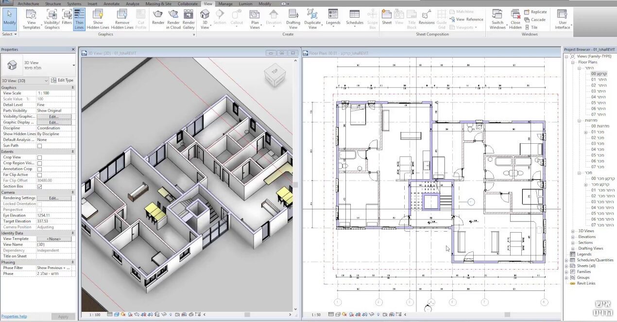
שלב ראשון : יצירת תקריב לחדר האמבטיה:
פקודה: View → Callout
לפני שמתחילים עם הפריסה,
חשוב ליצור תקריב (Callout) של אזור חדר האמבטיה,
כדי להגדיל את החלקים שדורשים פירוט:
- בוחרים את כלי Callout
ומסמנים את האזור הרצוי (למשל, קיר עם אריחים או אזור המקלחון). - נכנסים לרשימת ה-Project Browser,
שם יופיע המבט החדש, ויהיה אפשר לעבוד עליו בנפרד.כעת, יש לנו מבט ממוקד לכל קיר –
ומכאן העבודה תהיה הרבה יותר ברורה ונוחה!
טיפ: ניתן לשנות את שם ה-Callout כך שיהיה ברור
(למשל: "קיר ראשי – אזור מקלחון")
נטע שדה , אדריכלית
כנרת חממי , אדריכלית
שלב 2 : יצירת מבטים מותאמים – כי צריך לראות את הכול מכל הכיוונים
פקודה: View → Elevations → Interior Elevation
כדי לקבל תמונה ברורה של כל קיר בנפרד,
ניצור מבטי Elevation פנימיים:
- בוחרים את הכלי Interior Elevation,
ולוחצים בתוך החדר. - רוויט תיצור מבטים לכל קיר בחדר –
אפשר להפעיל או לכבות חצים לפי הצורך. - מתאימים את גבולות המבט
כדי שלא לכלול פרטים מיותרים.
טיפ: מומלץ לסדר את ה-View Names
כך שהכול יהיה ברור (למשל: "קיר כיור", "קיר אסלה").
נטע שדה, אדריכלית
ענת חנוכייב , אדריכלית
ענת חנוכייב , אדריכלית
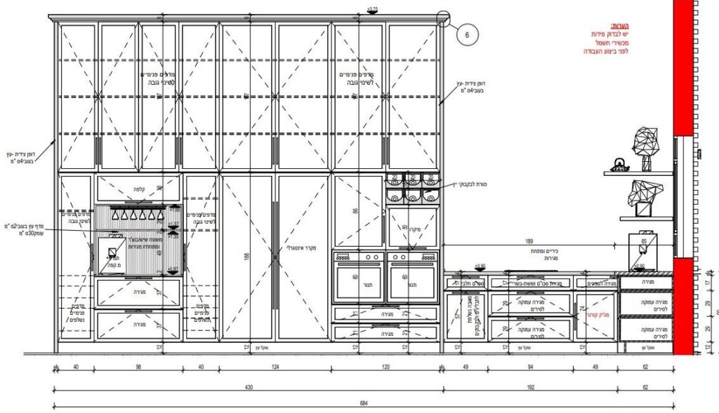
שלב 3 : הוספת סניטריה וריהוט
פקודה: Insert → Load Family / Component
חדר אמבטיה בלי סניטריה זה כמו רוויט בלי BIM –
אז הגיע הזמן להכניס את הפריטים החשובים:
- מייבאים ומציבים אסלות, כיורים, מקלחונים, אמבטיות וארונות אחסון.
- מוודאים שכל האלמנטים נמצאים בגובה ובמיקום הנכון.
- אם צריך, משתמשים ב-Modify → Align כדי לוודא שהכול מיושר כמו שצריך.
טיפ: אם רוצים פריטים מעוצבים יותר,
ניתן להוריד משפחות מוכנות מאתרי BIM כמו BimSmith או BIMobject
נטע שדה, אדריכלית
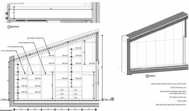
שלב 4 : חיפויים וריצופים
פקודה: Modify → Split Face + Paint
עכשיו מתחילים להכניס קצת סטייל!
- משתמשים בפקודת Split Face
כדי לחלק את הקירות לפי אזורי חיפוי וצבע ,
או לחלופין בונים קירות חיפוי על בסיס הקירות הקיימים. - לאחר מכן, בוחרים Paint –
כדי להלביש עליהם את החומרים המתאימים –
קרמיקה, שיש, טיח וכו'. - ניתן לשלב פסי קישוט או אזורים מיוחדים
על ידי יצירת חיתוכים נוספים.טיפ: מומלץ לבנות את החיפוי כקיר נפרד,
כך נוכל לעבוד בצורה נוחה יותר על שינויים ועיצובים שונים.
שלב 5 : מידות, הערות וגיליונות
פקודה: Annotate → Aligned Dimension / Text
השלב האחרון – הפיכת כל העבודה לשרטוט ברור ומדויק:
- מוסיפים מידות מדויקות בין הכלים הסניטריים, הקירות והתקרה.
- משלבים הערות טקסטואליות שמסבירות פרטים חשובים
כמו "גובה התקנת ברז: 90 ס"מ". - מסדרים את הכול בגיליון מקצועי עם Title Block מתאים.
טיפ: הוסיפו Legend קטן שמציג את סוגי האריחים והחומרים –
זה יחסוך הרבה שאלות מיותרות בהמשך.
תירצה שחר , אדריכלות ועיצוב פנים
סיכום :
עכשיו אתם שולטים בפריסות פנים!
✔ יצרתם Callout ממוקד – כדי להציג את החלקים החשובים.
✔ בניתם מבטים פנימיים לכל קיר.
✔ הצבתם סניטריה וריהוט במיקומים נכונים.
✔ הוספתם חיפויים וריצופים שיעניקו לחדר מראה מושלם.
✔ שילבתם מידות, הערות וגיליונות לסיכום ברור ומדויק של כל העבודה
נו, אז מי אמר שפריסות פנים זה מסובך?
כנרת חממי ,מעצבת פנים































